Woonoppervlakte
Circa 75 m²
Perceeloppervlakte
Circa 101 m²
Bouwjaar
Gebouwd in 1923
Aantal kamers
5 kamers (2 slaapkamers)

Spoorstraat 202

4702 VP, Roosendaal (Noord-Brabant)

In een charmante straat vlak bij het bruisende hart van Roosendaal én op loopafstand van het station, ligt Spoorstraat 202. Een woning waar karakter en comfort samenkomen. De ligging is ideaal: rustig wonen met alle voorzieningen binnen handbereik. Denk aan winkels, horeca, scholen en goede verbindingen, zowel met de auto als het openbaar vervoer. Deze sfeervolle woning weet je direct te verrassen met haar ruimte, slimme indeling en warme uitstraling. De L-vormige woonkamer biedt een fijne mix van openheid en knusheid, de keuken is modern en praktisch ingericht en ook de badkamer is strak afgewerkt met oog voor detail. Buiten wacht een diepe tuin met een gezellige overkapping, de ideale plek voor zomeravonden of een rustige ochtend met een kop koffie. Op de eerste verdieping vind je twee comfortabele slaapkamers, waarvan de grootste extra charme krijgt door de houten balken en schuine daken. Daarnaast is er op de begane grond nog een multifunctionele ruimte die zich perfect leent als thuiskantoor, logeerkamer of hobbyruimte. Ben jij klaar om verliefd te worden op deze fijne plek? Plan snel die bezichtiging in en laat je verrassen, misschien is dit wel jouw nieuwe thuis!

Entree
Via de voordeur stap je binnen in een verzorgde hal waar je blik direct valt op de witte trap naar boven, strak en uitnodigend. Een mooie binnenkomer die gelijk de toon zet voor de rest van de woning.

Wonen & Koken
De ruime L-vormige woonkamer biedt het beste van twee werelden: een open sfeer én knusse hoekjes. Aan de voorkant vind je de gezellige zithoek, perfect voor een avondje Netflix of een goed boek. In het midden van de kamer is er ruimte voor een grote eettafel, ideaal voor lange diners. Openslaande deuren brengen je naar de tuin, wat het buitengevoel helemaal naar binnen haalt. De half-open-keuken is ruim opgezet en praktisch ingericht met een lang keukenblok langs de wand. Witte kastfronten en een warm houten werkblad zorgen voor een rustige, moderne uitstraling. Dankzij de inbouwapparatuur heb je alles binnen handbereik: een oven, kookplaat, afzuigkap en vaatwasser. Het grote raam boven het werkblad biedt niet alleen uitzicht op de tuin, maar zorgt ook voor veel lichtinval tijdens het koken. Hier ervaar je dagelijks hoe fijn het is om in een huis te wonen dat klopt tot in de details.

Slapen, Dromen & Douchen
Op de eerste verdieping zijn twee fijne slaapkamers. De hoofdslaapkamer is ruim, met charmante schuine daken en houten balken, karakter ten top! De tweede kamer is licht en knus, ideaal als babykamer, kinderkamer of werkplek.
De badkamer is modern en stijlvol met grote grijze tegels, een inloopdouche, toilet en een wit wastafelmeubel. Het houten plafond geeft een warme, natuurlijke touch.

Tuinieren, Zonnen & Genieten
De achtertuin is fraai aangelegd en biedt volop mogelijkheden voor ontspanning. Direct aan huis is er ruimte voor een grote eettafel op de betegeling, perfect voor een zomerse barbecue. Achterin de tuin vind je een overkapping waar je een loungehoek kunt creëren: lekker chillen met een drankje in de avondzon. Aansluitend aan deze overkapping bevindt zich een praktische berging – ideaal voor het stallen van fietsen of het opbergen van tuingereedschap.

Toelichtingsclausule NEN2580
De Meetinstructie is gebaseerd op de NEN2580. De Meetinstructie is bedoeld om een meer eenduidige manier van meten toe te passen voor het geven van een indicatie van de gebruiksoppervlakte. De Meetinstructie sluit verschillen in meetuitkomsten niet volledig uit, door bijvoorbeeld interpretatieverschillen, afrondingen of beperkingen bij het uitvoeren van de meting.

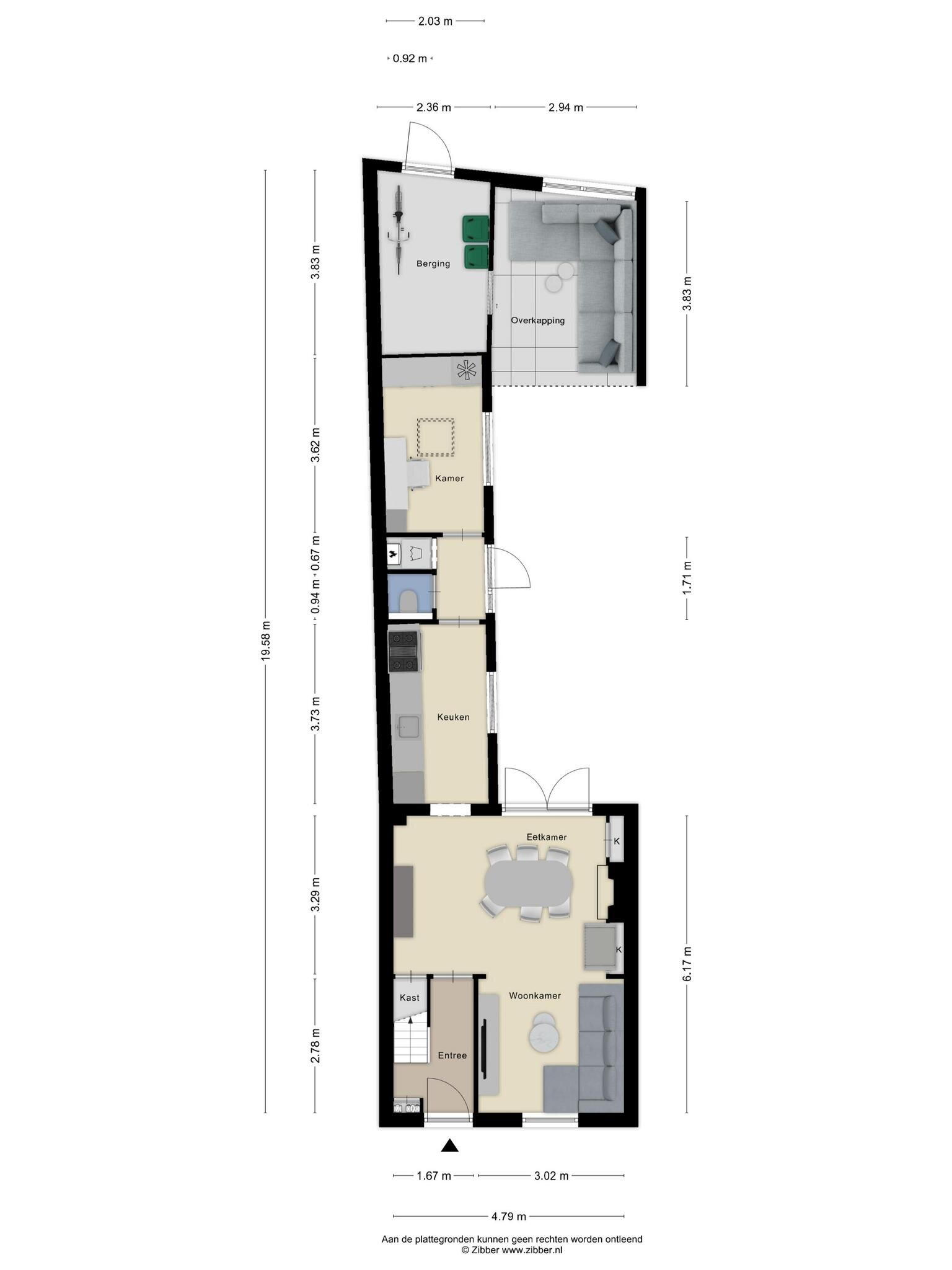
Plattegronden

Overdracht

Koopsom
€ 275.000 k.k.
Status
Verkocht
Aanvaarding
In overleg

Bouw

Object type
Eengezinswoning, tussenwoning
Soort bouw
Bestaande bouw
Bouwjaar
1923
Soort dak
Zadeldak bedekt met pannen

Oppervlakte en inhoud

Woonoppervlakte
75 m²
Perceeloppervlakte
101 m²
Inhoud
266 m³
Externe bergruimte
8 m²
Gebouwgeb. buitenruimte
12 m²

Indeling

Aantal kamers
5 kamers (2 slaapkamers)
Aantal badkamers
1 badkamer
Badkamervoorzieningen
Toilet, wastafel, wastafelmeubel, inloopdouche
Aantal woonlagen
3 woonlagen
Voorzieningen
Glasvezel kabel, natuurlijke ventilatie

Energie

Energielabel
D
Energielabel registratie
03-07-2025
Isolatie
Dakisolatie, vloerisolatie, dubbel glas
Verwarming
Cv-ketel
Warm water
Cv-ketel
Cv ketel
Remeha tzerra ace-matic 28c combiketel gas gestookt uit 2024 (eigendom)

Buitenruimte

Ligging
In centrum
Tuin
Achtertuin

Bergruimte

Schuur / berging
Aangebouwd steen

Garage

Soort garage
Geen garage

Parkeergelegenheid

Soort parkeergelegenheid
Openbaar parkeren

Energieverbruik in Roosendaal

Energielabel deze woning

Energielabel D

Publicatie energielabel: 03-07-2025

Stroomverbruik per jaar

2790 kWh

(Gemiddelde tussenwoning in Roosendaal)

Gasverbruik per jaar

1080 m³

(Gemiddelde tussenwoning in Roosendaal)

* Cijfers zijn afkomstig van het CBS en bedoeld als indicatie en kunnen verschillen voor deze woning

Indicatie hypotheeklasten

Eigen inleg:
Spaargeld / overwaarde

Rente:
Laagste 10-jaars rente

Laagste 10-jaars rente

2,76% - Centraal Beheer Groen... - NHG


2,98% - Centraal Beheer Groen... - 80%

Laagste 20-jaars rente

3,19% - Centraal Beheer Groen... - NHG


3,31% - Centraal Beheer Groen... - 80%

Laagste 30-jaars rente

3,34% - Centraal Beheer Groen... - NHG


3,47% - Centraal Beheer Groen... - 80%


Hypotheek:

Bruto maandlasten: € 0 p/m

Netto maandlasten: € 0 p/m

Hoe berekenen we dit?

Het rentepercentage is gebaseerd op de laagste 10-jaars vaste rente voor één hypotheekdeel. De vermelde rente (2.76% met NHG) is gecontroleerd op 01-08-2025. Deze berekening is gebaseerd op een annuïteitenhypotheek die volledig wordt afgelost, waarbij de maandlasten gedurende de gehele looptijd gelijk blijven. De werkelijke rente en netto maandlasten kunnen variëren, afhankelijk van uw persoonlijke situatie en de hypotheekverstrekker. Raadpleeg een financieel adviseur voor een nauwkeurige berekening en advies. Aan deze berekening kunnen geen rechten worden ontleend; het dient enkel als indicatie.

Documentatie

Zonnegrenzen bekijken

Op de kaart

Inwoners in Roosendaal

Cijfers voor postcodegebied 4702

Totaal aantal inwoners
13185 inwoners
Mannen
50%
Vrouwen
50%

Inwoners in Roosendaal

Cijfers voor postcodegebied 4702

tot 15 jaar
16%
15 tot 25 jaar
12%
25 tot 35 jaar
27%
45 tot 65 jaar
27%
65 en ouder
18%

Huishoudens in Roosendaal

Cijfers voor postcodegebied 4702

Eenpersoons zonder kinderen
41%
Meerpersoons zonder kinderen
26%
Huishoudens zonder kinderen
67%

Huishoudens in Roosendaal

Cijfers voor postcodegebied 4702

Huishoudens met één kind
9%
Huishoudens met meerdere kinderen
24%
Huishoudens met kinderen
33%

Woningen in Roosendaal

Cijfers voor postcodegebied 4702

Woningen voor 1945
29%
Woningen tussen 1945 en 1965
38%
Woningen tussen 1965 en 1975
10%
Woningen tussen 1975 en 1985
5%
Woningen tussen 1985 en 1995
2%

Woningen in Roosendaal

Cijfers voor postcodegebied 4702

Woningen tussen 1995 en 2005
8%
Woningen tussen 2005 en 2015
8%
Woningen na 2015
1%
Huurwoningen
50%
Koopwoningen
50%

Overige in Roosendaal

Cijfers voor postcodegebied 4702

Gemiddelde WOZ waarde
€ 183.000,-
Personen onder de 65 met uitkering
11%

Overige in Roosendaal

Cijfers voor postcodegebied 4702

Adressen per km²
2116
Stedelijkheid (schaal 1 op 5)
80%
Postcode kaart 4702 Gemeente kaart roosendaal

Korte feiten over Roosendaal

Roosendaal (uitspraakⓘ) is een stad in de Nederlandse provincie Noord-Brabant, en de grootste plaats binnen de gelijknamige gemeente Roosendaal.

Indien u vragen heeft of u wilt een bezichtiging inplannen, dan kunt u gebruik maken van het formulier hiernaast. Er zal daarna op korte termijn contact met u worden opgenomen.

Vakidioten met een passie voor vastgoed

Bij C&R Makelaars draait alles om jou en je woning. Wij zijn een frisse, energieke generatie makelaars met een passie voor mensen en de woningmarkt.

We geloven in een persoonlijke aanpak zonder poespas: eerlijk, transparant en altijd met een flinke dosis enthousiasme. Het verkopen van je huis is een belangrijke stap, en daarom begeleiden we je op een manier die bij jou past, van begin tot eind.

Met onze diepgaande kennis van de lokale markt geven we je waardevol advies dat perfect aansluit bij jouw situatie én dat van potentiële kopers.

Daarnaast staat ons creatieve team van vastgoedmarketeers klaar om jouw woning in de schijnwerpers te zetten. Met slimme en doordachte strategieën zorgen we ervoor dat je huis opvalt en het maximale resultaat behaalt.

Jouw tevredenheid is ons einddoel. We zetten alles op alles om je verwachtingen te overtreffen. Nieuwsgierig naar ons team? Klik op de button hieronder en maak kennis met ons!

Vakidioten met een passie voor vastgoed
Reviews C&R Makelaars

Spoorstraat 202, Roosendaal

€ 275.000 k.k. - Verkocht

Helaas, deze woning is verkocht!

Net te laat, deze woning is al verkocht. Laat een zoekopdracht bij ons achter zodat wij u direct kunnen helpen wanneer er nieuw aanbod beschikbaar komt.